Sign up to get new listings emailed daily! JOIN SIGN IN
Mandy Petersen
REALTOR®
(254) 644-8648

3626 Sagauro Drive , Grand Prairie, TX 75052

$493,990
  • 3626 Sagauro Drive , Grand Prairie, TX 75052 Main Photo

2 Total Photos [Click to View All]

New to the Market Active
BEDS4 BATHS3 full SQUARE FEET2,218 MLS#21202016
STATUSActive PROPERTY TYPEResidential - Single Family SUBDIVISIONThe Preserve at Forum SCHOOLArlington ISD

Property Description

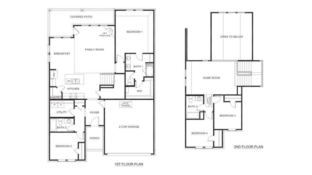
Find yourself at home in the Copaiba in our new community Preserve at Forum, located in Grand Prairie, Texas. When you step inside the Copaiba you're greeted by an open and inviting foyer, where natural light streams through the windows, setting a welcoming tone. To the left, a cozy secondary bedroom sits tucked away—perfect for guests or a quiet home office. Nearby, a full bathroom offers both convenience and privacy.Continuing into the home, the heart of the living space unfolds. The kitchen immediately catches the eye with its modern layout, complete with sleek countertops, a spacious island, and a walk-in pantry ready to store all your essentials. A large breakfast and dining area perfect for hosting brunch, allowing the aroma of freshly brewed coffee to flow seamlessly into the family room.The family room feels expansive and airy, perfect for cozy movie nights or entertaining friends. Just beyond, the covered patio is a peaceful retreat to unwind as the sun sets over the neighborhood.The primary suite, nestled on the main floor, offers a quiet sanctuary. With its walk-in closet and a spa-like ensuite bathroom featuring a double vanity and walk-in shower, perfect to unwinding after a long day.Heading upstairs, discover an open game room that feels full of possibilities—a space for the kids to play, a home gym, or even a second living area. Two additional bedrooms and a full bathroom complete the second floor, offering plenty of room for family or guests.Every corner of this home is thoughtfully designed, from the ample storage space to the functional flow between rooms. The two-car garage, utility room, and extra storage areas make daily living a breeze.See the Copaiba for yourself at The Preserve at Forum today!

3626 Sagauro Drive | MLS# 21202016

This single family home located at 3626 Sagauro Drive , Grand Prairie, TX 75052 is currently listed for sale with an asking price of $493,990. This property was built in 2026 and has 4 bedrooms and 3 full baths with 2218 sq. ft. Sagauro Drive is located in the The Preserve at Forum subdivision within the Arlington ISD school district. Search The Preserve At Forum real estate on mandypetersen.kellyrealtors.com today.

Property Features

Property Type: Residential - Single Family
Cooling: Ceiling Fan(s), Central Air
Garage: 2 car attached
Heating: Central
Lot Size: 0.14 Acres
Roof Type: Shingle
Year Built: 2026

Amenities

Double Vanity
Granite Counters
Kitchen Island
Open Floorplan
Pantry
Smart Home System
Vaulted Ceiling(s)
Walk-In Closet(s)
Wired for Data

Feature Descriptions

Appliances: Dishwasher, Disposal, Gas Range, Microwave, Plumbed For Gas in Kitchen, Refrigerator, Tankless Water Heater, Water Purifier
Days on Site: 2
Exterior: Brick, Fiber Cement
Fencing: Back Yard, Fenced, Front Yard, Wood
Flooring: Laminate, Vinyl
HOA Fee: 800/ Annually
Lot: Sprinkler System
Other Equipment: Irrigation Equipment
Parcel#: 9999999
Parking: Driveway, Garage, Garage Faces Front
Parking Notes: Driveway, Garage, Garage Faces Front
Utilities: City Sewer, City Water

Local Schools

Elementary School: Farrell
School District: Arlington ISD

Listed By / Shown By

Listed By

Agency Name: Keller Williams Realty Lone St
Agency Contact: 512-868-1771
Agent Name: Kristapher Haney

agent picture

Shown By

Agent Name: Mandy Petersen
Agent Phone: (254) 644-8648
Agency Title: Kelly, Realtors

IDX logo

Estimate Your Payment

Estimated Payment

$ 1,243.49 per month $1,099.41 Principal & Interest $0.00 Property Tax (data not provided by mls) $144.08 Homeowner's Insurance

Change Payment Information

%
years/fixed
yearly
yearly (est.)
(Payments are an estimate and may vary by lender)
Disclaimer: All information deemed reliable but not guaranteed. All properties are subject to prior sale, change or withdrawal. Neither listing broker(s) or information provider(s) shall be responsible for any typographical errors, misinformation, misprints and shall be held totally harmless. Listing(s) information is provided for consumers personal, non-commercial use and may not be used for any purpose other than to identify prospective properties consumers may be interested in purchasing. Information on this site was last updated 03/10/2026. The listing information on this page last changed on 03/10/2026. The data relating to real estate for sale on this website comes in part from the Internet Data Exchange program of Delta Media Group MLS (last updated Tue 03/10/2026 3:49:15 AM EST) or NTREIS (last updated Mon 03/09/2026 11:48:45 PM EST) or SABOR MLS (last updated Tue 03/10/2026 12:51:57 AM EST) or CTXMLS (last updated Mon 03/09/2026 11:34:29 PM EST). Real estate listings held by brokerage firms other than Kelly, Realtors may be marked with the Internet Data Exchange logo and detailed information about those properties will include the name of the listing broker(s) when required by the MLS. All rights reserved.

ntreis logoThe data relating to real estate for sale on this web site comes in part from the IDX of the Multiple Listing Service of NTREIS. The data on this site may not be reproduced or redistributed and is only for those individuals viewing this web site. Real estate listings held by brokerage firms other than the brokers/agents with their own information using this site are marked with the NTREIS thumbnail logo and detailed information about them includes the name of the listing broker(s).

Privacy Policy / DMCA Notice / ADA Accessibility


Agent License Information: 510578

Login to My Homefinder

Pixel